Proč začít bydlet právě zde?
luxusní lokalita s kompletní občanskou vybaveností
privátní park s dětským hřištěm
venkovní parkovací stání zdarma
podzemní garáže v suterénu domu
atraktivní poloha nových bytů, klid blízko přírody
pohodlné bydlení v blízkosti zastávky metra B – Zličín – 5 min MHD
vysoký standard provedení a možnost vybavení „na míru“
blízkost nákupních center Metropole, Tesco, Ikea, Lidl, Globus
do detailu kreativně propracované architektonické řešení celého projetku
snadná dostupnost cyklistické stezky – vstupní brána do Karlštejnska
dobrá dopravní dostupnost do centra Prahy vlakem – Smíchov 20 min.
Více o projektu
Moderní soubor bytových domů vyrostl v blízkosti nákupního centra Metropole – Zličín a konečné trasy metra B. Projekt nazvaný nové byty v Praze lokalita Chrášťany je jedinečný díky privátnímu parku projektovaném ve středovém traktu, který poskytne majitelům bytových jednotek možnost nerušeného odpočinku a relaxace. Zároveň je jedinečný kvalitním dispozičním řešením domů s pouze třemi nadzemními podlažími a praktickým uspořádáním bytů.
V této době probíhá výstavba bytového domu M a N kde najdete byty velikostní kategorie 2+kk, 3+kk a 4+kk. Všechny byty mají sklepní kóji a k dispozici venkovní parkovací stání. Dále má většina bytů balkón, oproti předchozí výstavbě jsme zvýšili stnadardní provedení: podlahových krytin, vnitřních dveří, obkladů a blažeb, dlažby spol. prostor, fasády apod.
Díky vysokému standardu bytů vybavených moderními technologiemi nabízíme budoucím uživatelům komfortní bydlení v blízkosti hlavního města.
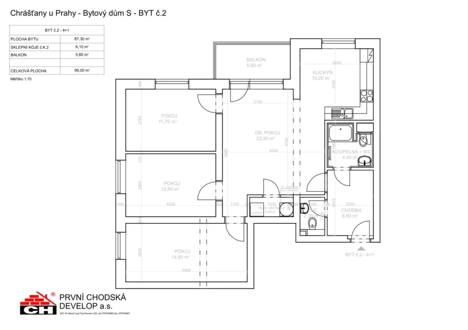
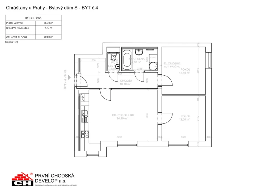
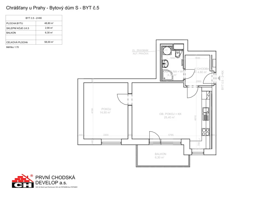
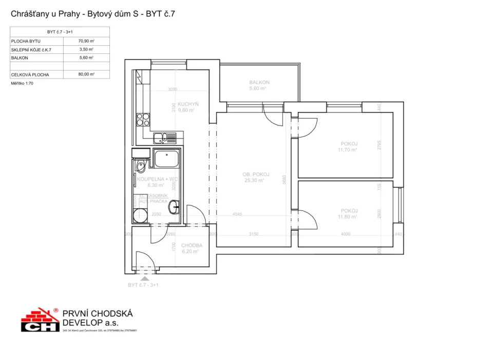
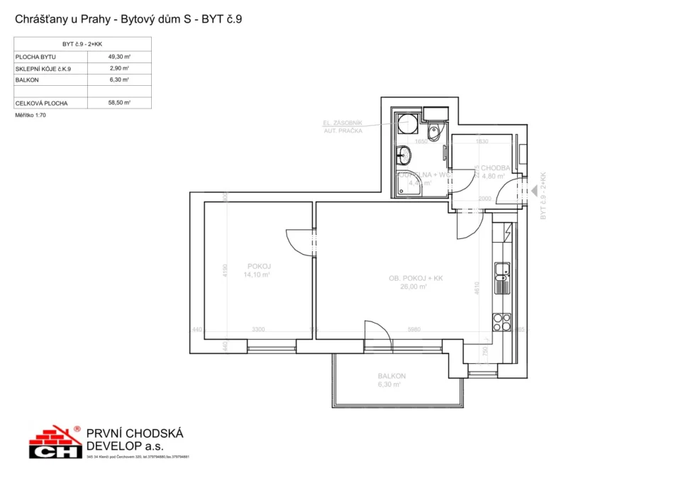
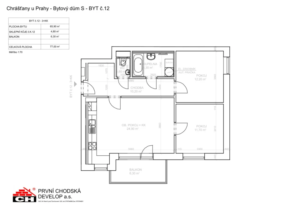
Bytové jednotky mají různé podlahové plochy doplněné jednou sklepní kójí a dostatečným počtem parkovacích stání.











