2.2 / Dům S
3.1 / 9 /Dům S
Rezervace

2.3 / Dům S

Termín dokončení: 12 / 2026

* cena je platná do 30.9.2023

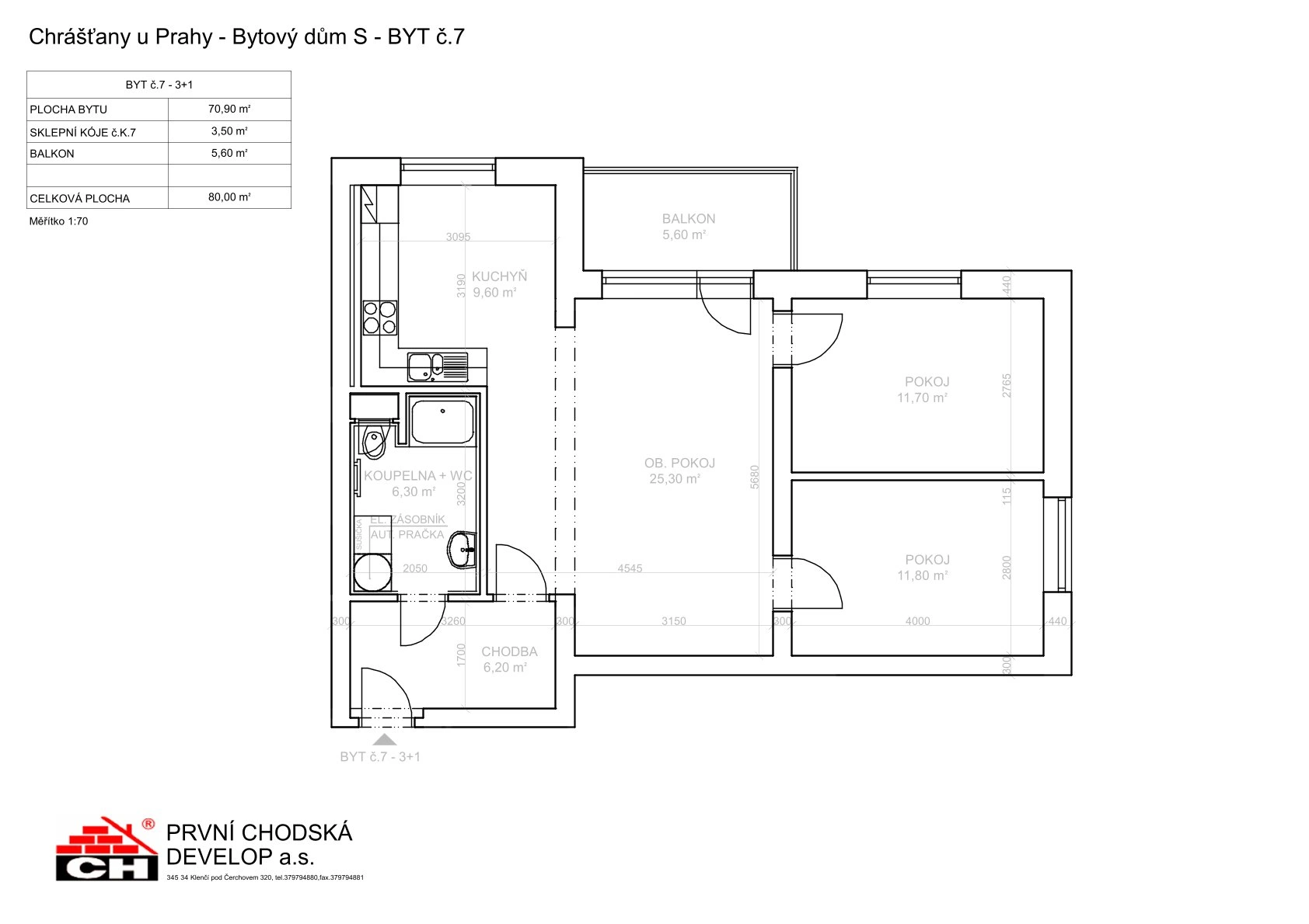
PLOCHA

80,0 m²

PODLAŽÍ

2 NP

DISPOZICE

3+kk

SKLEP

3,5 m²

BALKÓN

5,60 m²

ORIENTACE