2.3 / Dům S
3.2 / 10 / Dům S
Rezervace

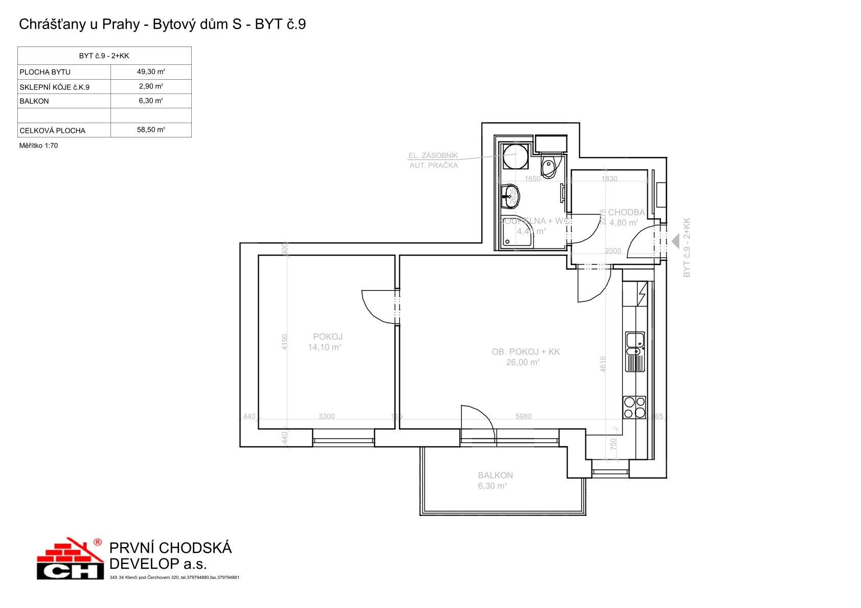
3.1 / 9 /Dům S

Termín dokončení: 12/2026

* cena je platná do 30.9.2023

PLOCHA

58,5 m²

PODLAŽÍ

3.NP

DISPOZICE

2+kk

SKLEP

2,9 m²

BALKÓN

6,3 m²

ORIENTACE