1.2 / dům S
1.4 / dům S
Rezervace

1.3 / dům S

Termín dokončení: 12 / 2026

* cena je platná do 30.9.2023

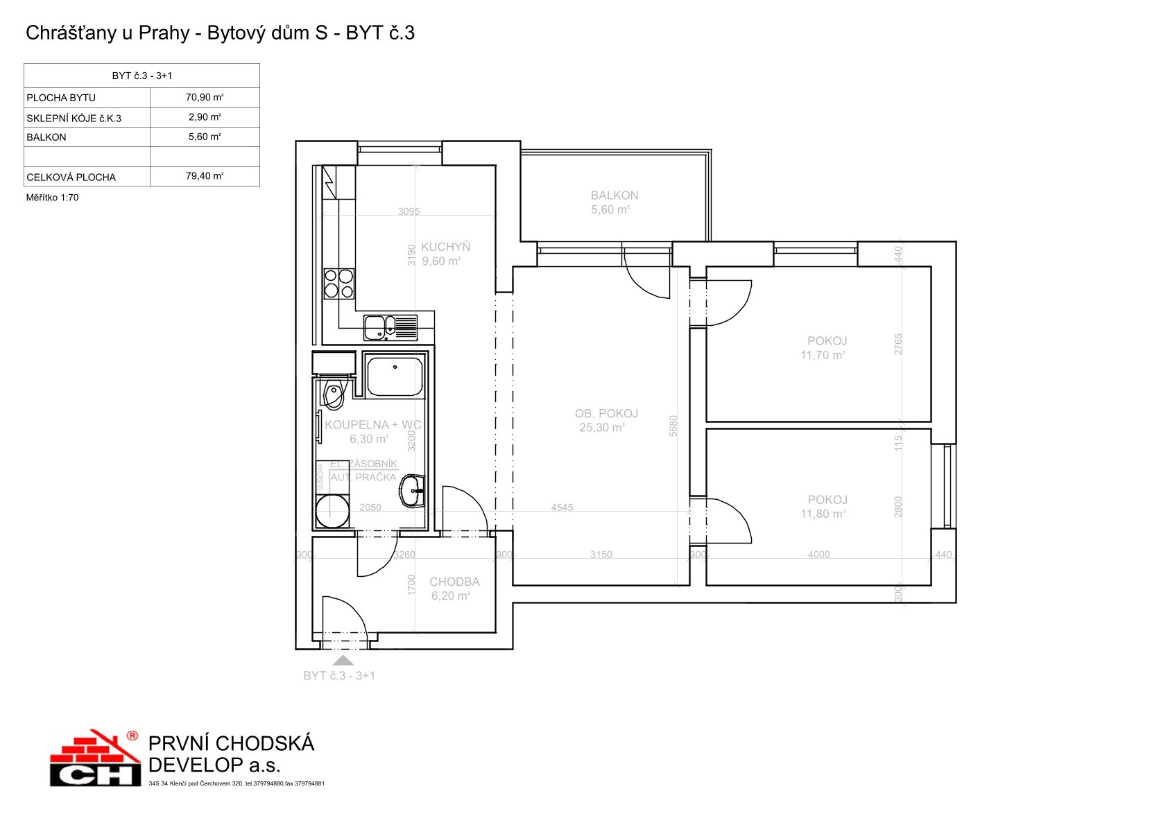
PLOCHA

79,40 m²

PODLAŽÍ

1. NP

DISPOZICE

3+kk

SKLEP

2,90 m²

BALKÓN

5,60 m²

ORIENTACE